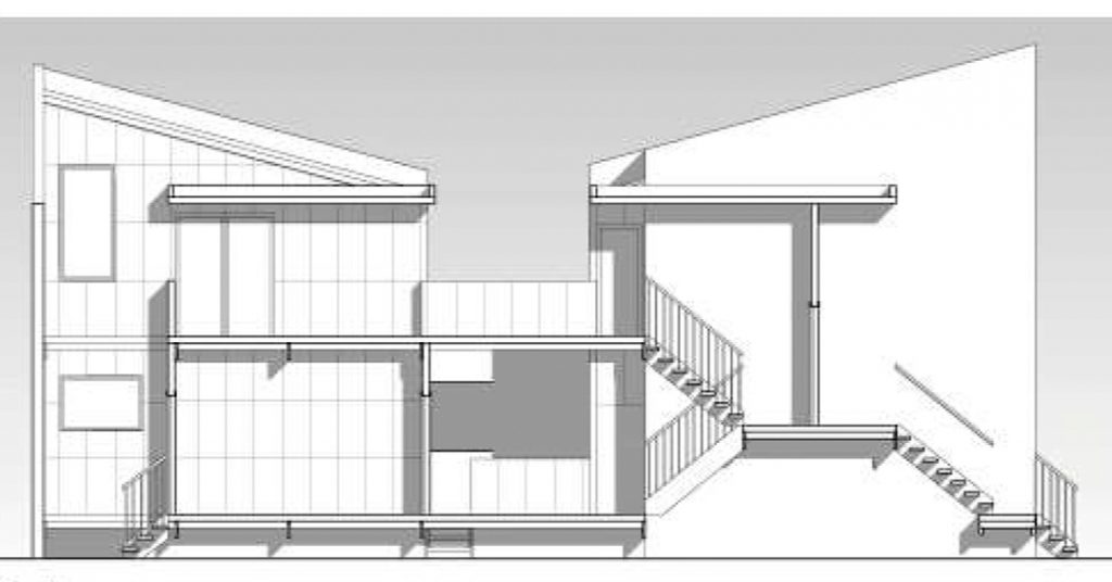
Diego Córdova, a 🔝architect from our Architect-US Job+J1 Visa Program, submitted After 16A Earthquake. Diego finished his Bachelors degree in Architecture from the Universidad San Francisco de Quito in 2019.
[Do you want to be our next featured talent and participate in our monthly Portfolio Challenge? Submit your work here.]
In April 16 of 2016, Ecuador suffered one of the deadliest earthquakes (7.8 Richter) in the last decades. Some towns were completely and partially destroyed, there were almost 700 deceased. Inmediately my school of Architecture changed its agenda towards a response for the current crisis and its implication. One of them was the residential deficit in the affected cities and the fact that people would invade zones of high earthquake risk for informal housing.
So this project was pretty peculiar for the collective awareness in the group of teachers and students, which was intensified with every single professor in the USFQ, the international forums, media, etc. There was a strong sense of commitment and concern by having in mind that this was not only an exercise but a project for a real situation and real people.
Diego Córdova used AutoCAD, Revit, and Adobe Photoshop to create this beautiful artwork.
[Let us also share your great work with our Community and participate in the Portfolio Challenge today.]
How would you respond to an earthquake in terms of new architecture and construction design? Leave us your thoughts/insights in the comments section below!! 👇👇👇

Images by Diego Córdova
Make sure you keep up with us at Architect-US, and make full use of all of the information and insight we have for you for free. Do NOT forget that we have helpful services for you ranging from Portfolio Plans to Career Advice.👌 Our Selection Committee of architects and designers with 10+ years of experience love to help architects and designers at any point of their career to push the industry forward together!






Add comment