
Alvaro Follana, one of our remarkable participants in the Architect-US Job+J1 Visa Program, created Public Baths for the City of Madrid for his final thesis in his Master’s Architecture program at Universidad Francisco de Vitoria. He was awarded the second best note of the call for his work. Follana graduated in July 2019, and is now looking to make the big move to the US.
[Do you want to participate in our monthly Portfolio Challenge? Submit your work here.]
Follana gained inspiration for his work during his time living in Madrid during the hot summers. Madrid, being one of the highest capital cities in Europe and with a drier climate, is a prime candidate for a large scale public bathhouse such as the one Follana designed. The aim was to create a public bath that not only fit within the urban landscape, but also the environmental landscape. Water drainage and tracking of water usage is important within a drier environment. The government has already started to invest in new building technologies that reduce water usage rates around the city.

[Let us share your great work with our Community and participate in the Portfolio Challenge today.]
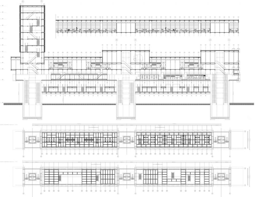
The project’s research question aims to provide solutions to both the community and the local government, as a public bath must be approved by all the necessary parties. He aims to make sure that any public land use contribute to the standard of living the citizen within the town. In the final rendering you can see how he defines public spaces, and the value they bring to each floor of the bath.
Alvaro Follana used Illustrator, Photoshop, and Autocad for this project.
What do you think of these Public Baths? Would you go? Leave us your thoughts in the comments section below!! 👇👇👇


Images by Alvaro Follana
When considering your next career move, plan proactively and create Portfolios that include your best work. Consider looking into finding a mentor with Architect-US, and improving your Portfolios with our Portfolio Plans and Career Advice Program. We provide coaching and personalized mentorship, so you can have a professional and experienced take on your next steps in your career, as well as a great team to confide in. Our Selection Committee of architects and designers with 10+ years of experience and an extensive knowledge of the Architectural Industry recognizes when a candidate has ‘the eye’ and takes them to the next level.






Add comment