Guillermo del Rio joined our Architect-US Job+J1 Visa Program and was quickly able to get work in the USA at Corgan. Last time he submitted a project called HORNSTEINAR to the Portfolio Challenge, and this time around he is providing the community with his project called Office Building. Since he graduated from Polytechnic University of Madrid (ETSAM) he has been dead set on traveling and experiencing the world of architecture all over the globe.
[Do you want to be our next featured talent and participate in our monthly Portfolio Challenge? Submit your work here.]
While he landed at Corgan in Los Angeles at the onset of his adventure, a couple months into his experience he had to find a new job, and now he is working at McGinnis Chen Associates in San Francisco after being let go from due to the economic downturn caused by the pandemic.
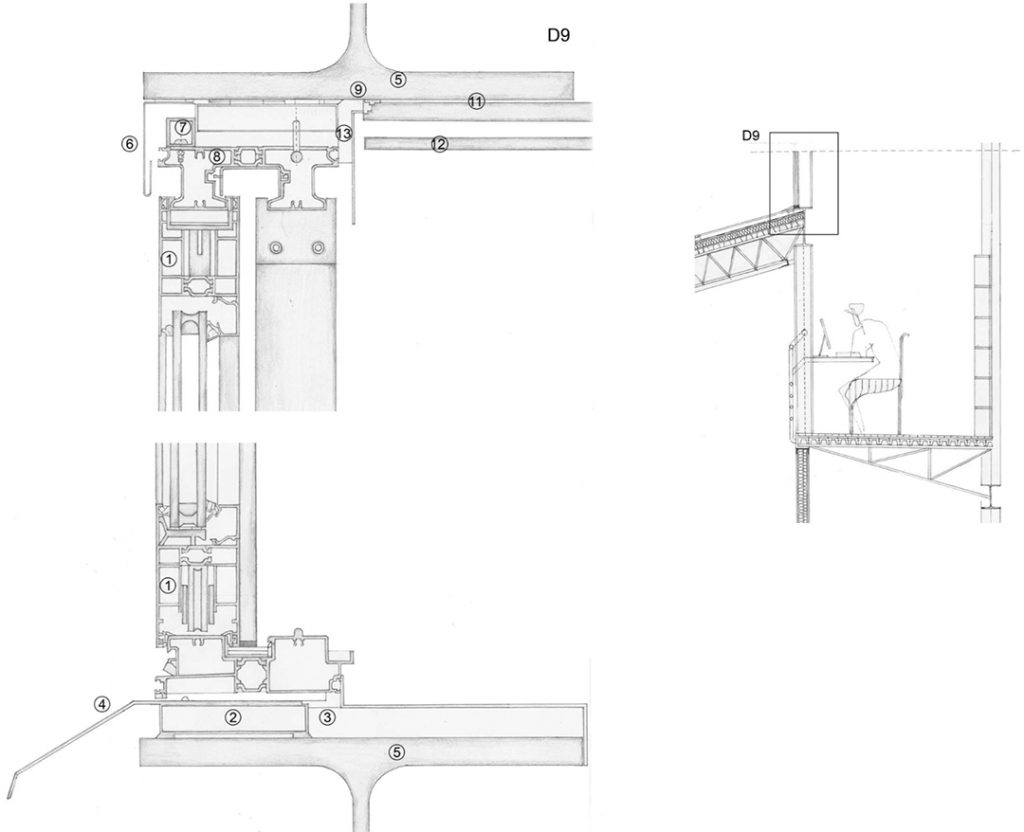
Office Building provides us with a look into how Guillermo would design an office space that centers around the nature within the structure, the green and open spaces that form the lungs of the building. This design aspect also creates a more sustainable and efficient way of circulating clean air and cooling structures. As you can see below, Guille created circular pods that tie into the center full of nature.
[Let us also share your great work with our Community and participate in the Portfolio Challenge today.]
How would you design a sustainable office building that provides a peaceful environment for those that inhabit it? Leave us your thoughts/insights in the comments section below!! 👇👇👇











Images by Guillermo del Rio
Make sure you keep up with us at Architect-US, and make full use of all of the information and insight we have for you for free. Do NOT forget that we have helpful services for you ranging from Portfolio Plans to Career Advice.👌 Our Selection Committee of architects and designers with 10+ years of experience love to help architects and designers at any point of their career to push the industry forward together!






Add comment