Giovanna Gómez Salias joins us for their second time to submit a project to the Portfolio Challenge called Grand Island Hotel. She is an alumni of the Architect-US School and is part of the Architect-US Job + J1 Program, which has allowed her to improve her Portfolio and is currently in full swing searching for an opportunity in the USA. Giovanna is a Senior Architect at MURANO Desarrolladora in Mexico City.
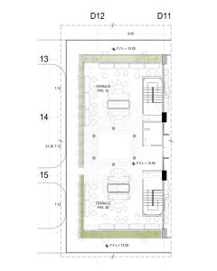
Grand Island Hotel is a project that Giovanna was a part of during her time working at MURANO Desarrolladora and was in coordination with Interior Design firm AOMA and top firm HOK. She assisted on the project development, façade design, and the coordination of the finishes.
[Do you want to be our next featured talent and participate in our monthly Portfolio Challenge? Submit your work here.]
The Hotel was started in 2020 and is located in Cancun, and is still under construction. As she has over 11 years of experience in the industry, she provides some top notch designs for the community to have a strong sense of a quality design.
[Let us also share your great work with our Community and participate in the Portfolio Challenge today.]
How would you design a hotel in Cancun? Leave us your thoughts/insights in the comments section below!! 👇👇👇







Images by Giovanna Gómez Salias
Make sure you keep up with us at Architect-US, and make full use of all of the information and insight we have for you for free. Do NOT forget that we have helpful services for you ranging from Portfolio Plans to Career Advice.👌 Our Selection Committee of architects and designers with 10+ years of experience love to help architects and designers at any point of their career to push the industry forward together!






Add comment