April was a month with incredible top notch projects that caught the eye, but May gives us a set of 4 different projects that highlight our community’s variety in design skills and perspectives. With 4 artists’ work being presented throughout the month on all of our different platforms, we have the final winner with the most likes on Instagram!!
[Do you want to participate in our monthly Portfolio Challenge? Submit your work here.]
The winner of the $30 Amazon Gift Card for this month, the month of May is Sun Marina Town, which garnered the most likes on Instagram with 45 likes in May!!
Duc Nguyen joins us for his first submission into the Architect-US Portfolio Challenge, and we are excited to highlight his work, as he is a Job+J1 Visa Program Alumni. Duc through the Job+J1 Visa Program worked extensively with our Founder, Pati Garcia, and we were able to find him a position at a top firm in New York City, Handel Architects. Duc has worked across the world, starting in Hanoi then moving to Singapore then ending up in New York City.
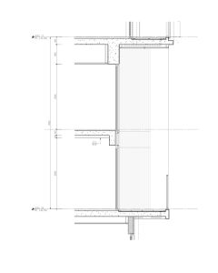
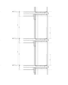
With this perspective on the global architecture discourse, his first submission is highly anticipated. Sun Marina Town is a project that shows Duc’s experience with all aspects of creating a set of papers, ranging from sketching to design papers to construction documents to the concern for natural lighting.
Duc has an extensive career across the globe, but he views his experience in Italy as key to his design prowess. He was able to complete his Masters at the Politecnico di Milano, after finishing his Bachelors in Hanoi at the National University of Civil Engineering. It is always important to travel as much as possible through different professional experiences to show your interest in work abroad.
What were your favorite projects from May?!?! Leave us your thoughts in the comments section below!! 👇👇👇

If you want to see more by Duc Nguyen, scroll down to the bottom to find the rest of his project, Sun Marina Town.
Thank you to everyone who had their work presented in the month of May!! 😁😁 We want to make sure that they all get more exposure! 👀👀
In second place was Giovanna Gómez Salias’ project called Wyndham Grand Hotel with over 34 likes on Instagram. Giovanna is a Senior Architect at MURANO Desarrolladora in Mexico City. She has 11 years of experience in Project Development in Hospitality, Vertical Residential Buildings, Luxury Houses, and Commercial Offices. She is an alumni of the Architect-US School and is part of the Architect-US Job + J1 Program, which has allowed her to improve her Portfolio and is currently in full swing searching for an opportunity in the USA.
[Do you want to see your portfolio work here as well? Submit your work here.]
In third place was Manuel Mateu Sanchis with a project called Al Campo Me Voy, which garnered over 22 likes on Instagram. The project focuses on creating a residential space that blends nature and the structure, so that when you approach the building it blends in with the surrounding fields. By taking on shapes that are common within nature, Manuel sought to create a visual effect by having the building built on a varied plane.
Manuel has architects in his family, as his father and his grandfather have been architects since he was a child. This consistent interaction with the design world has inevitably led to his strong passion for the architecture profession. Once completing his bachelor and master studies in Architecture, he decided to leave Spain to experience being an Architect in Paris. His first stop was the acclaimed studio Dominique Perrault, and through this experience he was able to take on large scale projects for the first time.
In fourth place was Nieves Andrea Calvowith a project called Farenheit 451, which received over 18 likes on Instagram. From a deep reflection about the current situation in the “Ensanche de Vallecas”, a dystopic project is presented as scenes throughout the years. Based on the film ”Farenheit 451”, the spaces and structures created answer those of the movie, as well as the relations established between the characters of history and those who appear in the project. A radical project is outlined, that evolves with the time according to the needs and reactions of the own PAU inhabitants.
The objective of this project is to reflect on a current reality, such as the expansion of Vallecas and its recent construction and subsequent decline. Despite having invested huge amounts of money in infrastructure connecting the center with Pau, its isolation and deterioration are increasingly noticeable.







Images by Duc Nguyen
Make sure you keep up to date with us at Architect-US, and take advantage of the information and insight we have for you for free. As well as the helpful services we provide ranging from Portfolio Plans to Career Advice. 🙏🙏🤓👌 Our Selection Committee of architects and designers with 10+ years of experience are also a highly-qualified resource for you to take advantage while planning your next steps.






Add comment