Nieves Andrea Calvo joined our Architect-US Job+J1 Visa Program last year, and they submitted a project for the Portfolio Challenge called Atmósferas del Pecado. She was able to make her way to New York City and join Andrea Steele at Andrea Steele Architects (ASA). She is also the co-founder of Les Hof-Architects, which she started back in 2016. This time around she submitted a project called Farenheit 451, which is based IN PAU DE VALLECAS.
From a deep reflection about the current situation in the “Ensanche de Vallecas”, a dystopic project is presented as scenes throughout the years.
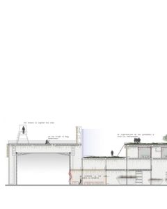
Based on the film ”Farenheit 451”, the spaces and structures created answer those of the movie, as well as the relations established between the characters of history and those who appear in the project.
A radical project is outlined, that evolves with the time according to the needs and reactions of the own PAU inhabitants.
The objective of this project is to reflect on a current reality, such as the expansion of Vallecas and its recent construction and subsequent decline. Despite having invested huge amounts of money in infrastructure connecting the center with Pau, its isolation and deterioration are increasingly noticeable.
[Do you want to be our next featured talent and participate in our monthly Portfolio Challenge? Submit your work here.]
From a radical and exaggerated point of view, a solution is proposed that evolves over time, as a result of the needs and reactions of the inhabitants themselves.
The project is presented as a natural evolution of a hypothetical situation of a deadly epidemic in 2012, which leads to the massive isolation of the inhabitants in their housing blocks for fear of becoming infected. With the passage of time, isolation intensifies and the growing needs of families are carried out by reusing materials from the homes themselves and even from modern urban planning. The dangers that self-construction by inexperienced people can entail, leads to a specialization of one of the blocks that become “architect firefighters”, even creating a catalog that regulates this self-construction.
The “architectural comic” is starred by Montag and Linda, characters from the 60’s film “Farenheit 451” and whose plot is used internally as a construction base for the spaces that appear.
[Let us also share your great work with our Community and participate in the Portfolio Challenge today.]
How would you find inspiration from your hometown to design around it? Leave us your thoughts/insights in the comments section below!! 👇👇👇




Images by Nieves Andrea Calvo
Make sure you keep up with us at Architect-US, and make full use of all of the information and insight we have for you for free. Do NOT forget that we have helpful services for you ranging from Portfolio Plans to Career Advice.👌 Our Selection Committee of architects and designers with 10+ years of experience love to help architects and designers at any point of their career to push the industry forward together!






Add comment