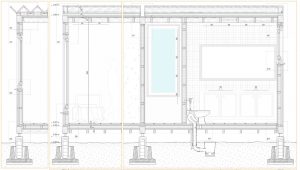
Louis Lacorne Casero joins us again for his second iteration of the Portfolio Challenge, and this time with a project called Casa en Madera. Last time he submitted Incubators for Artists for his first project in the Portfolio Challenge, which completed for his Universidad San Pablo CEU, Final Thesis Project.
For this project, you can see the pain staking deal he goes through to define every aspect of the build for this house. You can see the reasoning for why he chose the material he did and the techniques he did. For this project, Louis used Autocad, Rhino, Vray and Photoshop to create this wonderful design!
[Do you want to be our next featured talent and participate in our monthly Portfolio Challenge? Submit your work here.]
[Let us also share your great work with our Community and participate in the Portfolio Challenge today.]
How would you design a house of wood? Leave us your thoughts/insights in the comments section below!! 👇👇👇










Images by Louis Lacorne Casero
Make sure you keep up with us at Architect-US, and make full use of all of the information and insight we have for you for free. Do NOT forget that we have helpful services for you ranging from Portfolio Plans to Career Advice.👌 Our Selection Committee of architects and designers with 10+ years of experience love to help architects and designers at any point of their career to push the industry forward together!






Add comment