June was a month for projects focused on sustainable living, dental hygiene and health structures, and more. In June the incredible work of 7 architects was highlighted and shown on our platforms, and now we have the final winner with the most likes on Instagram!!
[Do you want to participate in our monthly Portfolio Challenge? Submit your work here.]
Last month’s winner was Fernanda Azevedo’s The Boom with over 144 Likes on Instagram.
The winner of the $30 Amazon Gift Card for this month was able to get over 198 likes on their project via Instagram. The sixth Portfolio Challenge winner of 2021 for the month of June is…. Miguel Majano Díaz’s The Educational Nature.
The Educational Nature seeks to create an educational design for a Montessori school on the Tagus River in Toledo, Spain. The idea behind The Educational Nature is to create a space in touch with nature that allows for the students of the Montessori school to have a sense of the classroom being everywhere, not one specific room or place. Miguel provides us with a look inside his design world, where he is able to go into detail on the different sections and structures that form the whole building being designed.

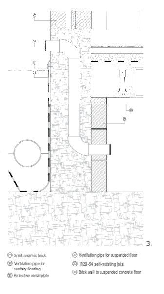
Images by Miguel Majano Díaz
If you want to see more by Miguel scroll down to the bottom to find the rest of their project, The Educational Nature.
We want to highlight the beautiful work of the other 6 incredible artists that were showcased in JUNE!!
In second place was Louis Lacorne Casero’s Incubators for Artists which was his final thesis project and aimed to rehabilitate an old abandoned industrial building on the banks of the river almendares in La Habana, Cuba. His project received 184 likes on Instagram. The project decides to revitalize the bank of the river transforming the building into an artist hub where 10 international artists would live and work, as well as create workshops for the people that live around the project. Louis has been working at Ricardo Bofill Taller de Arquitectura (RBTA) in Barcelona for just over 2 months now.
In third place was Ignacio Igarzabal’s Relocation of itinerant merchants in Santa Cruz de Tenerife, which was able to get over 72 likes on Instagram. His project seeks to create an eco-sustainable park that has mix-use such as an outdoor and indoor marketplace, residential spaces near park green, a cyclist park, and a green park for people to collaborate and relax. Ignacio was able to move in mid 2019 to work in Fort Lauderdale, Florida at EDSA, where he was able to practice his 3D modeling, rendering, and construction documents.
In fourth place was Ashlon Frank, Sebastiano Baldan y Nazish Pathan‘s Hope Dental Center, which was a winning competition entry at the Rwanda International Design Competition. All three have international experience and have applied their skills to all kinds of design challenges. It was able to garner over 68 likes on Instagram. The project aims to provide not only the basic dental hygiene amenities and tools necessary, but there is also space dedicated to community organizing and collaboration.
In fifth place was Matteo Terazzi’s Sky Patch, which was able to garner over 60 likes on Instagram. Sky Patch seeks to combine sustainability with social upward mobility through thoughtful and meaningful design. He has been working at Studio Razavi Architecture and looks forward to getting the chance to work in the USA, and show his skills in sustainability and social housing. Sky Patch continues to push the New Urbanism movement forward and help to create new designs and ideas for social mobility.
[Let us share also your great work with our Community and participate in the Portfolio Challenge today.]
In sixth place was Alvaro Guillen’s Plastic Cloud, which seeks to create a new residential space in Figueria da Foz, Portugal. His project was able to get 43 likes on Instagram. He tries to create a much more complex system and design aimed at providing a space for people to live and share. Alvaro graduated from the Universidad Francisco Vitoria (UFV) in Spain, and more recently he lived in San Francisco while working at AMLGM.
In seventh place was Juan Camilo Garcia’s Hilton Jeddah was able to win over 35 likes on Instagram. Juan Camilo has already made it through the Architect-US Job+J1 Visa Program and within a couple of months he was able to get work in the USA at Indidesign. Much of his career has been defined by focusing in Dubai, in the United Arab Emirates, working as an Interior Designer for firms such as The White Truffle Studio and Hirsch Bedner Associates.
Which projects for June were your top 3? Leave us your thoughts/insights in the comments section below!! 👇👇👇






Images by Miguel Majano Díaz
Make sure you keep up to date with us at Architect-US, and take advantage of the information and insight we have for you for free. As well as the helpful services we provide ranging from Portfolio Plans to Career Advice. 🙏 Our Selection Committee of architects and designers with 10+ years of experience are also a highly-qualified resource for you to take advantage while planning your next steps.






Add comment