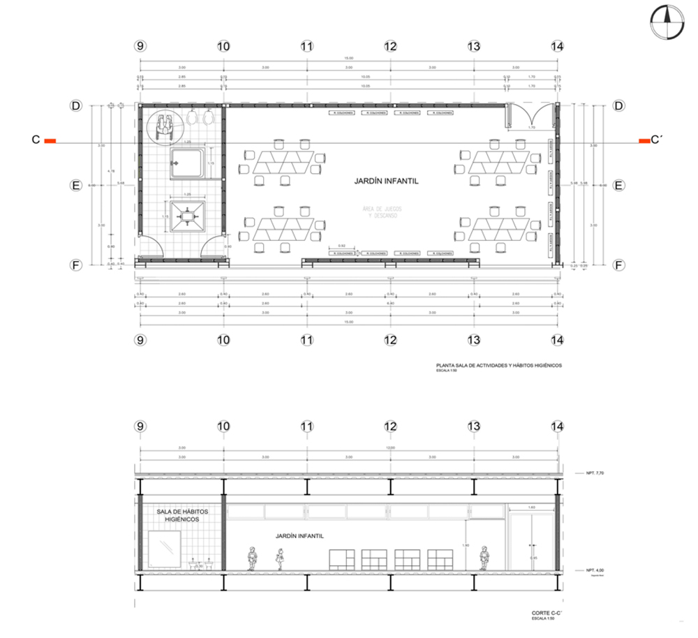
Daniela Alejandra Santibañez Liberona provided us with one of her projects from her time studying at Universidad de Santiago de Chile. Last time she submitted a project called Social Recreation Center, which attempts to revitalize an area of downtown Santiago that was previously an area chosen for a new highway. This time around she is providing us with a project called ELEVATED GARDEN. Her project aims to design and create a kindergarten that includes a connection with nature and is an open space that focuses on promoting collaboration and interaction between the students.
[Do you want to be our next featured talent and participate in our monthly Portfolio Challenge? Submit your work here.]
Daniela more recently was part of the Architect-US Interview Series and you can find the full episode here. She goes into detail about her first thirty days in the USA and how she is adapting to the new surroundings at Inglese Architecture in New Jersey. Now she is working on designing affordable housing and accessible public spaces that are needed in New Jersey.
[Let us also share your great work with our Community and participate in the Portfolio Challenge today.]
How would you design a kindergarten in your community? Leave us your thoughts/insights in the comments section below!! 👇👇👇
Images by Daniela Alejandra Santibañez Liberona
Make sure you keep up with us at Architect-US, and make full use of all of the information and insight we have for you for free. Do NOT forget that we have helpful services for you ranging from Portfolio Plans to Career Advice.👌 Our Selection Committee of architects and designers with 10+ years of experience love to help architects and designers at any point of their career to push the industry forward together!








Add comment