Miguel Majano Díaz is a member of our Architect-US Job+J1 Visa Program, and previously submitted The Exposed Interior. This time around he is submitting a project called The Educational Nature, which takes on educational design for a Montessori school on the Tagus River in Toledo, Spain. Miguel went to Universidad de Castilla – La Mancha for his degree in Architecture, and has been working towards finding a new opportunity in New York City, more specifically in Educational Building design.
[Do you want to be our next featured talent and participate in our monthly Portfolio Challenge? Submit your work here.]
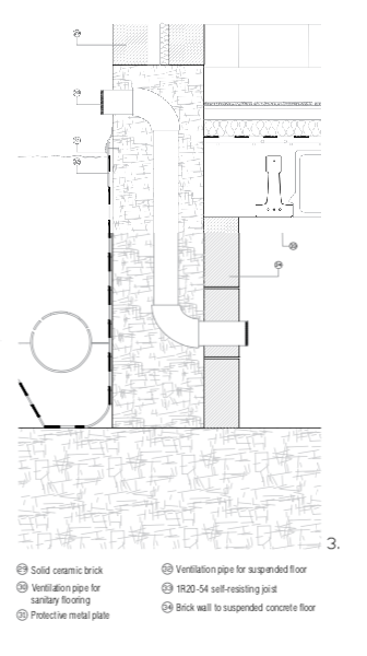
The idea behind The Educational Nature is to create a space in touch with nature that allows for the students of the Montessori school to have a sense of the classroom being everywhere, not one specific room or place. Miguel also talks about the use of native materials in the building such as bricks and wood from Toledo, and more creative ways of incorporating storage space into the structure. Below you will see how Miguel provides us with a look inside his design world, where he is able to go into detail on the different sections and structures that form the whole building being designed.
[Let us also share your great work with our Community and participate in the Portfolio Challenge today.]
How would you design a classroom or space for a Montessori school on the river? Leave us your thoughts/insights in the comments section below!! 👇👇👇






Images by Miguel Majano Díaz
Make sure you keep up with us at Architect-US, and make full use of all of the information and insight we have for you for free. Do NOT forget that we have helpful services for you ranging from Portfolio Plans to Career Advice.👌 Our Selection Committee of architects and designers with 10+ years of experience love to help architects and designers at any point of their career to push the industry forward together!






Add comment