Matteo Terazzi was part of our Architect-USJob+J1 Visa Program, and previously submitted SynEnergy Hall to the Portfolio Challenge. For this week’s portfolio challenge he submitted his project called Sky Patch. Matteo Terazzi gained a lot of exposure to sustainability work during his studies at the Polytechnic University of Milan, which is where his ideas for SynEnergy Hall came from. Sky Patch seeks to combine sustainability with social upward mobility through thoughtful and meaningful design.
[Do you want to be our next featured talent and participate in our monthly Portfolio Challenge? Submit your work here.]
Matteo has shown interest throughout his career in creating spaces that promote collaboration and a greater sense of belonging to the community around. He has been working at Studio Razavi Architecture and looks forward to getting the chance to work in the USA, and show his skills in sustainability and social housing. In previous Portfolio challenges we brought up New Urbanism, an architectural movement to build new neighborhoods by maximizing opportunities for social exchange at all scales. Sky Patch continues to push this movement forward and help to create new designs and ideas for social mobility.
[Let us also share your great work with our Community and participate in the Portfolio Challenge today.]
How would you organize your social housing areas of town? Leave us your thoughts/insights in the comments section below!! 👇👇👇



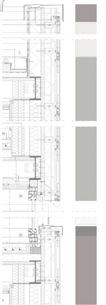
Images by Matteo Terazzi
Make sure you keep up with us at Architect-US, and make full use of all of the information and insight we have for you for free. Do NOT forget that we have helpful services for you ranging from Portfolio Plans to Career Advice.👌 Our Selection Committee of architects and designers with 10+ years of experience love to help architects and designers at any point of their career to push the industry forward together!






Add comment