Hey everyone!
It’s been a month since I started at MN DPC, since I arrived in New York on a Sunday evening. The very next day at 9 am I was jet-lagged and on my way to my first day at the studio. I was nervous and very excited, after two months of Skype calls and emails exchanges with the partners I couldn’t wait to meet them in person.
Since the first moment I felt very welcome by everyone at this office located in a spectacular skyscraper. I felt as well quickly integrated in the team and the first day I was already working on a small scale project. Through this one I was able to learn the studio work methodology from the very beginning of a project. Early on that same week I was included in two other projects, going to meetings with clients and site visits. It was a great week!
However I found also many differences between my previous experiences in Spain and the American one. These contrasts make this experience unique and more interesting but also hard sometimes. Different software, different measurement units and of course different language! I have several tools, physical and virtual, to make these barriers less obstructive, but there is one funny thing I wasn’t expecting and for which I haven’t found any secret help yet. And it is the stunning number of ACRONYMS American architects use! Some of them I could deduce myself and some others I could ask a colleague their meaning, but sometimes they are just an enigma to me.
Here is a sample of some acronyms I have been able to figure out:
- TBD / To be determined
- FYI / For your information
- DOB / Department of buildings
- MEP / Mechanical electrical plumbing
- PDR / Private dining room
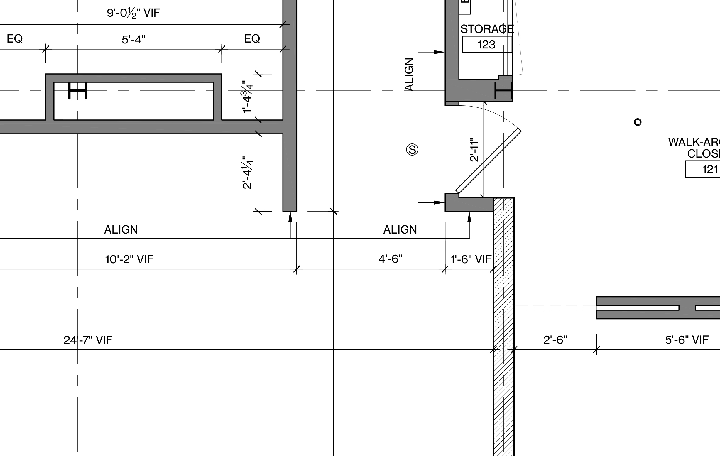
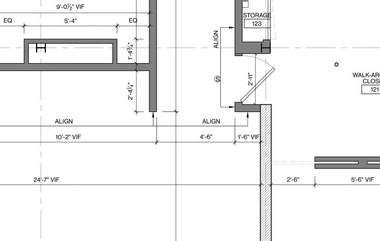
- EQ / Equal
- VIF / Verify in field
- AFF / Above finished floor
- CL / Center line
- BO FC / Bottom of finished ceiling
- RCP / Reflected ceiling plan
I hope someone finds this piece of information helpful and please let me know if you find a “Stands For” app or I will have to develop it myself 🙂





